2038 W29TH ST

2038 W29TH ST

Home   ›   For Sale   ›   For Rent   ›   2038 W29th St

 

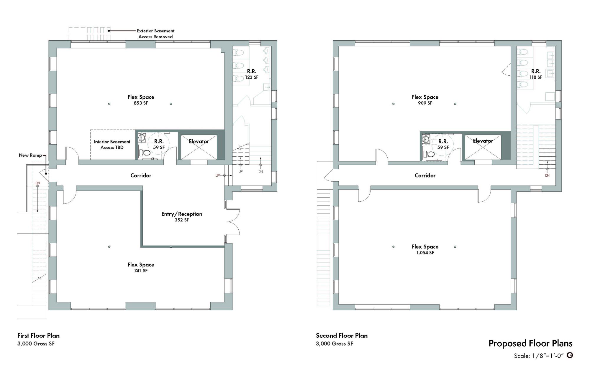
The former Luther Memorial School, located on Lorain Ave in a prime location near St. Ignatius High School, and situated within the City's plans for the Lorain Midway Project. This 6700 sq ft, two story building with a dedicated parking lot is being fully renovated with an elevator, ground floor accessibility and open flex spaces to accommodate a range of business opportunities.  

Community Features

  • Walking distance to West Side Market and Ohio City stores and restaurants;
  • Adjacent to St Ignatius High School Campus and playing fields;
  • Located along bus routes and future plans for Lorain Avenue Midway Project;
  • Near the upcoming Marriot Hotel at W 26th St; and
  • Within two miles of Rocket Arena and Progressive Field.